Home
Kai
Tanja
Unser Heimkino
NWN 2 World-editing
Gästebuch
Feedback
Hushbox
Lautsprecher
Leinwandhalterung
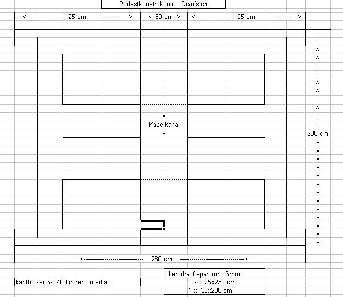
Sitzkonsolen / Podest
Bühnenaufbau
Elektronik
Link-Liste
konzepte und ideen
hier mal ein paar ideen mit hilfe der user im beisammen.de forum